売家
高岡市長江売家
| 所在地 | 間取り | 価格 | 土地面積 土地坪数 |
建物面積 建物坪数 |
建物構造 | 建物階数 築年月 |
|---|---|---|---|---|---|---|
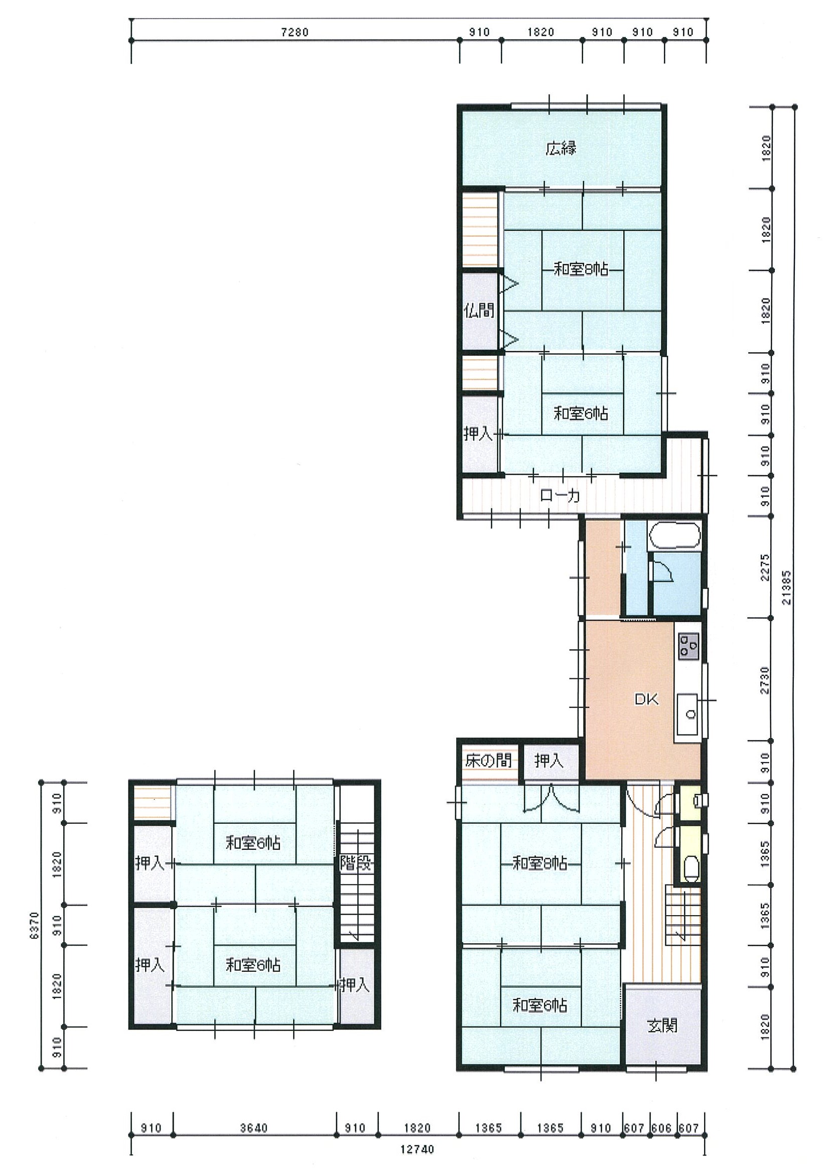
| 高岡市長江63番地 | 6DK | 595万円 | 191.37m2 57.88坪 |
131.27m2 39.7坪 |
木造瓦葺 | 2 昭和43年、昭和54年 |
| 間取内訳 | 6DK | 駐車スペース | 有 |
|---|---|---|---|
| 入居時期 | 即日 | 玄関の方角 | 北東 |
| 建ぺい率 | 70% | 容積率 | 400% |
| 用途地域 | 指定なし | 地 目 | 宅地 |
| 交通手段 | バス停波岡西口徒歩約5分 | 校区 | 西条小学校約1600m |
| 融雪装置 | 無 | 上水道 | 有 |
| ガ ス | 個別プロパン | 排水 | 個別浄化槽 |
| 取引態様 | 売主 | ||
| 備 考 | 公簿売買、現況渡し。 | 設備・条件 | 排水現況個別浄化槽。敷地内に都市下水マス有。 |









